Garbe Progresus Park Klášterec

Chomutov
Plánovaná výstavba
Cena na vyžádání
Pronájem, Prodej
Minimální jednotka
4 000 m²
K dispozici
0 m²
Do výstavby
0 m²
Rampy
Přímé vjezdy
Sprinklery
Parkování
Veřejná doprava
Cross-dock
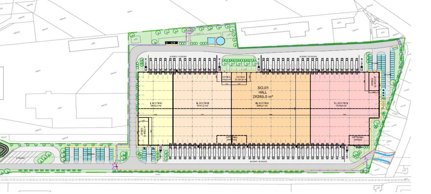
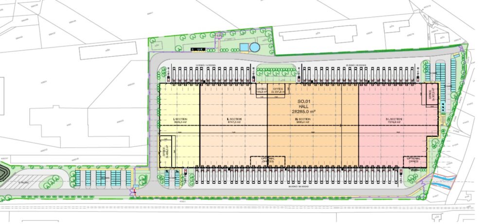
Areál se skládá z jedné moderní průmyslové haly o celkové rozloze 17 000 m2. Budova je navržena se standardní čistou výškou 10 m a disponuje technickými standardy jako jsou nákladní rampy a přímé vjezdy. Budova obdržela certifikaci BREEAM Very Good. Prostory jsou vhodné pro skladování, logistiku, distribuci či lehkou výrobu.
Areál se nachází v průmyslové zóně východně od města Klášterec nad Ohří (okres Chomutov). Přímo u silnice E442 (I/13) spojující Chomutov a Karlovy Vary. 13 km od exitu č. 82 na dálnici D7 (Praha - Chomutov - Německo). Areál je dostupný městskou hromadnou dopravou - autobusová zastávka u vjezdu do areálu.
Areál se skládá z jedné moderní průmyslové haly o celkové rozloze 17 000 m2. Budova je navržena se standardní čistou výškou 10 m a disponuje technickými standardy jako jsou nákladní rampy a přímé vjezdy. Budova obdržela certifikaci BREEAM Very Good. Prostory jsou vhodné pro skladování, logistiku, distribuci či lehkou výrobu.