Chlazená hala Nupaky

Prague-South
Ve výstavbě
Cena na vyžádání
Pronájem
Minimální jednotka
6 200 m²
K dispozici
6 200 m²
Do výstavby
6 200 m²
Rampy
Přímé vjezdy
Veřejná doprava
Fotovoltaika
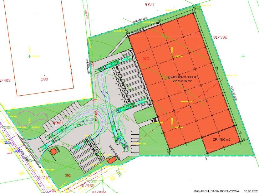
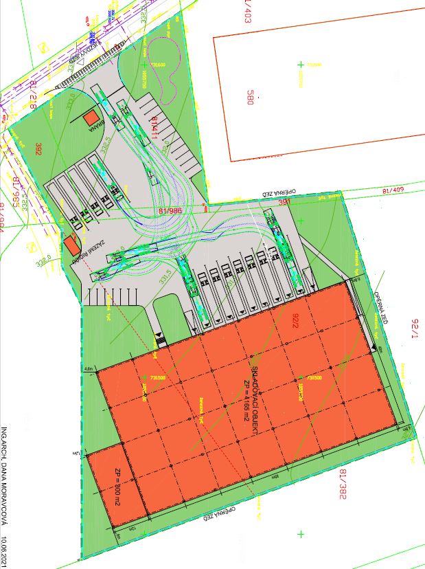
Nová výstavba jedné haly o velikosti 6 500 m2. Hala je rozdělena do 5 samostatných chladících komor s regulací teploty. Hala nabízí kromě skladových i kancelářské prostory se zázemím. Možnost vybudování prodejny na pozemku. Vhodné pro skladování potravin a léčiv.
Areál se nachází v průmyslové oblasti v obci Nupaky, jihozápadně od Prahy. Dobré napojení na dálnici D1. V docházkové vzdálenosti je autobusová doprava.
Nová výstavba jedné haly o velikosti 6 500 m2. Hala je rozdělena do 5 samostatných chladících komor s regulací teploty. Hala nabízí kromě skladových i kancelářské prostory se zázemím. Možnost vybudování prodejny na pozemku. Vhodné pro skladování potravin a léčiv.